Leave a Message

Thank you for your message. We will be in touch with you shortly.

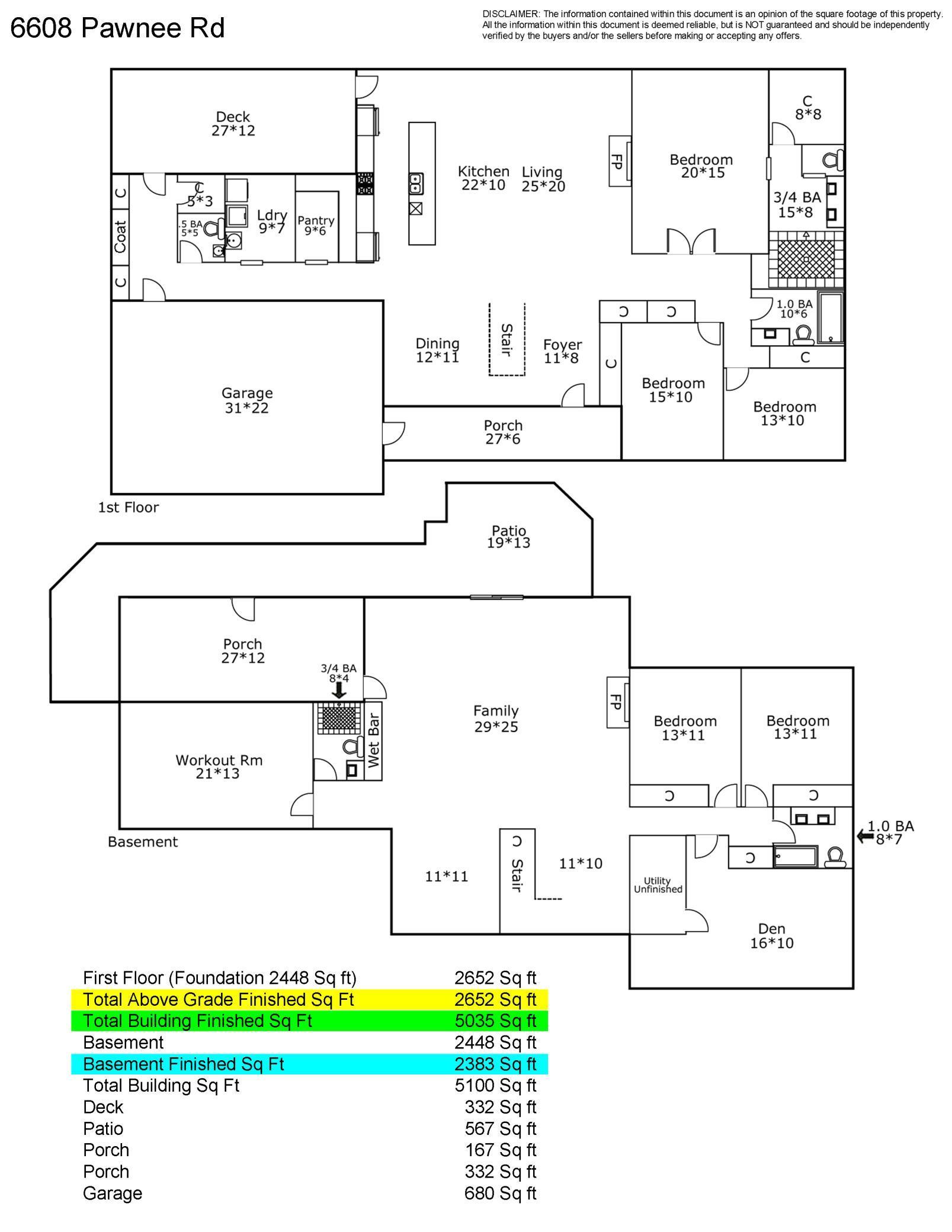
6608 Pawnee Road
6608 Pawnee Road
6608 Pawnee Road
6608 Pawnee Road
6608 Pawnee Road
6608 Pawnee Road
6608 Pawnee Road
6608 Pawnee Road
6608 Pawnee Road
6608 Pawnee Road
6608 Pawnee Road
VIEW PHOTOS
$2,500,000

6608 Pawnee Road

5 Beds 5 Baths 5,035 Sq.Ft.

Description

Luxury Living Redefined, Indian Hills in Edina! Get ready to experience a modern masterpiece--a fully renovated luxury home by Urban Edge Homes, set to be completed in May. Perched on an expansive 0.57-acre wooded lot with serene pond views, this one-story gem blends sophistication with comfort. Join us for an exclusive opportunity to meet the builder and explore how we can perfect your current home or craft a custom renovation for a new one. This stunning residence boasts 5 bedrooms, 5 baths, and over 5,000 sq ft of meticulously designed space. The main level dazzles with a grand living room ideal for hosting, a gourmet kitchen featuring top-tier appliances, custom cabinetry, and sleek finishes, plus a primary suite with a spa-inspired bath and generous walk-in closet. Flooded with natural light through oversized windows, the open layout feels both airy and inviting. Downstairs, discover a lower-level haven with a family room, wet bar, and guest suites--perfect for relaxation or entertaining. Outside, enjoy a beautifully landscaped retreat and a spacious 3-car attached garage. Nestled in the prestigious Indian Hills neighborhood of Edina, this home offers unmatched privacy, luxury, and nature--all just minutes from top schools, dining, and shopping. Don't miss your chance to own this extraordinary property!

Share Property

Location

6608 Pawnee Road, Edina, MN 55439

Status

For Sale
Cari Ann Carter

Cari Ann Carter

TITLE

REALTOR®

Property Amenities

Interior
Fireplace Family Room, Gas, Living Room
Appliances Dishwasher, Dryer, Exhaust Fan, Range, Refrigerator, Washer
Total Bedrooms: 5
Half Bathrooms: 1
Three-Quarter Bathrooms: 2
Full Bathrooms: 2
Area & Lot
Total area 5,100 Sq.Ft.
Lot Area 0.57 Acres
Living area 5,035 Sq.Ft.
MLS® ID 6621229
Year Built 1975
School District Edina
Water Frontage Pond
View Description North,West
Type Residential
Status For Sale
Exterior
Stories 1
Air conditioning Central Air
Heat type Forced Air
Disability Features None
Water Source City Water/Connected
Garage Space 3.0
Sewer City Sewer/Connected
Parking Attached Garage
Finance
Sales Price $2,500,000
HOA Fees $225 yearly
Buyer Agency Compensation 2.7%
Real Estate Tax $13,015 yearly
image

Schedule a Showing

We would love to show you our beautiful property. Please select your preferred date and time below. An agent will be in touch shortly to confirm your appointment.

Schedule a Showing

We would love to show you our beautiful property. Please select your preferred date and time below. An agent will be in touch shortly to confirm your appointment.

Thank you for your interest in 6608 Pawnee Road, Edina, MN 55439. We are reviewing your request and will be in touch shortly!

Mortgage Calculator

Estimate your monthly mortgage payment, including the principal and interest, property taxes, and HOA. Adjust the values to generate a more accurate rate.

All estimates are provided for informational purposes only. Actual amounts may vary.
$0,000 Your Payment 20 15 65
$0,000 Your Payment

Work With Us

Cari Ann and her team deliver a stress-free and seamless process to help you through your next life transition. Whatever that might be.